АССОЦИАЦИЯ ДОМОСТРОИТЕЛЬНЫХ ТЕХНОЛОГИЙ

СИП ДОМА, СИП ПАНЕЛИ, ДОМОКОМПЛЕКТЫ, СИП ОБОРУДОВАНИЕ, СИП КОНСТРУКЦИИ, СИП ЗАВОДЫ

        +7-937-992-40-28           russiasip@mail.ru        ПОЛУЧИТЬ КОНСУЛЬТАЦИЮ ПОЛУЧИТЬ ИПОТЕКУ

ОТПРАВИТЬ СООБЩЕНИЕ     КАНАЛ В ТЕЛЕГРАМ  

  • ГЛАВНАЯ
  • АССОЦИАЦИЯ
    • О НАС
    • ФРАНШИЗА
    • ВСТУПЛЕНИЕ
    • НАШИ ФИЛИАЛЫ
    • РЕЕСТР
    • ТЕХНОЛОГИЯ
    • ВИДЕО
    • СЕРТИФИКАТЫ
    • НОВОСТИ
  • ПРОЕКТЫ
    • 1-ЭТАЖНЫЕ
    • 2-ЭТ. ДО 100 КВ.М.
    • 2-ЭТ. 100-150 КВ.М.
    • 2-ЭТ. ОТ 150 КВ.М.
    • МНОГОКВАРТИРНЫЕ
    • ОФИСЫ И ЗДАНИЯ
    • ГОСТИНИЦЫ
    • ТАУНХАУСЫ
    • ЭЛИНГИ
    • ГАРАЖИ
    • МИНИМАГАЗИНЫ
    • БАРНХАУС и ХАЙ-ТЕК
    • ТУРБАЗЫ
  • СТРОИТЕЛЬСТВО
    • СТОИМОСТЬ
    • СТРОИТЕЛЬСТВО ПО СЕРТИФИКАТАМ
    • СОБРАТЬ САМОМУ ИНСТРУКЦИЯ
    • ФОТО ДОМОВ
    • ОБЪЕКТЫ НА КАРТЕ
  • ВАЖНО
  • ТОВАРЫ
    • СИП ПАНЕЛИ
      • ЭКОЛОГИЧНОСТЬ
      • ПЕНОПОЛИСТИРОЛ
      • ОСБ
      • СВОЙСТВА И ХАРАКТЕРИСТИКИ
      • ГОРЮЧЕСТЬ
      • ДОЛГОВЕЧНОСТЬ
      • КУПИТЬ ПАНЕЛЬ
      • ПРАЙС-ЛИСТ
      • СЕРТИФИКАТЫ
    • СИП GREEN BOARD
    • СМЛ ПАНЕЛИ
      • СМЛ ПАНЕЛЬ ОПИСАНИЕ
      • КУПИТЬ СМЛ ПАНЕЛЬ
      • ПРАЙС-ЛИСТ
    • ОБОРУДОВАНИЕ
    • ДОМОКОМПЛЕКТЫ
      • СОБРАТЬ САМОМУ ИНСТРУКЦИЯ
      • ДОМОКОМПЛЕКТ
      • СТОИМОСТЬ
  • АКЦИИ
  • ЦЕНЫ
  • ОБЪЕКТЫ
  • ОТЗЫВЫ
  • ЗЕМЛЯ
  • КОНТАКТЫ
  • ИПОТЕКА
  • КАЛЬКУЛЯТОР ИПОТЕКИ
  • ПОИСК
  • ГЛАВНАЯ
  • АССОЦИАЦИЯ
    • О НАС
    • ФРАНШИЗА
    • ВСТУПЛЕНИЕ
    • НАШИ ФИЛИАЛЫ
    • РЕЕСТР
    • ТЕХНОЛОГИЯ
    • ВИДЕО
    • СЕРТИФИКАТЫ
    • НОВОСТИ
  • ПРОЕКТЫ
    • 1-ЭТАЖНЫЕ
    • 2-ЭТ. ДО 100 КВ.М.
    • 2-ЭТ. 100-150 КВ.М.
    • 2-ЭТ. ОТ 150 КВ.М.
    • МНОГОКВАРТИРНЫЕ
    • ОФИСЫ И ЗДАНИЯ
    • ГОСТИНИЦЫ
    • ТАУНХАУСЫ
    • ЭЛИНГИ
    • ГАРАЖИ
    • МИНИМАГАЗИНЫ
    • БАРНХАУС и ХАЙ-ТЕК
    • ТУРБАЗЫ
  • СТРОИТЕЛЬСТВО
    • СТОИМОСТЬ
    • СТРОИТЕЛЬСТВО ПО СЕРТИФИКАТАМ
    • СОБРАТЬ САМОМУ ИНСТРУКЦИЯ
    • ФОТО ДОМОВ
    • ОБЪЕКТЫ НА КАРТЕ
  • ВАЖНО
  • ТОВАРЫ
    • СИП ПАНЕЛИ
      • ЭКОЛОГИЧНОСТЬ
      • ПЕНОПОЛИСТИРОЛ
      • ОСБ
      • СВОЙСТВА И ХАРАКТЕРИСТИКИ
      • ГОРЮЧЕСТЬ
      • ДОЛГОВЕЧНОСТЬ
      • КУПИТЬ ПАНЕЛЬ
      • ПРАЙС-ЛИСТ
      • СЕРТИФИКАТЫ
    • СИП GREEN BOARD
    • СМЛ ПАНЕЛИ
      • СМЛ ПАНЕЛЬ ОПИСАНИЕ
      • КУПИТЬ СМЛ ПАНЕЛЬ
      • ПРАЙС-ЛИСТ
    • ОБОРУДОВАНИЕ
    • ДОМОКОМПЛЕКТЫ
      • СОБРАТЬ САМОМУ ИНСТРУКЦИЯ
      • ДОМОКОМПЛЕКТ
      • СТОИМОСТЬ
  • АКЦИИ
  • ЦЕНЫ
  • ОБЪЕКТЫ
  • ОТЗЫВЫ
  • ЗЕМЛЯ
  • КОНТАКТЫ
  • ИПОТЕКА
  • КАЛЬКУЛЯТОР ИПОТЕКИ
  • ПОИСК
  +7-937-992-40-28     НАШ КАНАЛ   СЕРТИФИКАТЫ

НОВОСТИ, СКИДКИ, АКЦИИ

Главная 2-ЭТАЖНЫЕ ДОМА ДО…

2-ЭТАЖНЫЕ ДОМА ДО 100м2

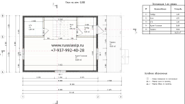
"САМАРСКИЙ" 70м2

Быстрый просмотр

1 ЭТАЖ: кухня-гостиная 19.08м2, спальня1 6.54м2, с/у 3.98м2. 

2 ЭТАЖ: холл 2.6м2, спальня2 9.97м2, спальня3 10.08м2, балкон 4.8м2

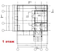
"УСТЬ ИЛИМСК" 96м2

Быстрый просмотр

1 ЭТАЖ: тамбур 4м2, холл 6.9м2, с/у 4м2, кухня-гостиная 26.8м2, терраса 15м2 (опционно). 
2 ЭТАЖ: холл 3.08м2, с/у 2.88м2, спальня1 16.54м2, спальня2 8.12м2, спальня3 8.12м2. 

"ЭЛЯ" 75м2

Быстрый просмотр

1 ЭТАЖ: крыльцо 2.16м2, прихожая 1.82м2, гардероб 1.93м2, кухня-гостиная 19.06м2, ванная 6.13м2. 

2 ЭТАЖ: холл 2.64м2, спальня1 9.57м2, спальня2 15.12м2. 

"ЮЛИЯ" 72м2

Быстрый просмотр

1 ЭТАЖ: холл 15.55м2, кухня 10.18м2, прихожая 5.09м2. 

2 ЭТАЖ: холл 11.23м2, спальня 15.55м2

  • <<
  • 1
  • 2

"САМАРСКИЙ" 70м2

1 ЭТАЖ: кухня-гостиная 19.08м2, спальня1 6.54м2, с/у 3.98м2. 

2 ЭТАЖ: холл 2.6м2, спальня2 9.97м2, спальня3 10.08м2, балкон 4.8м2

Больше информации

"УСТЬ ИЛИМСК" 96м2

1 ЭТАЖ: тамбур 4м2, холл 6.9м2, с/у 4м2, кухня-гостиная 26.8м2, терраса 15м2 (опционно). 
2 ЭТАЖ: холл 3.08м2, с/у 2.88м2, спальня1 16.54м2, спальня2 8.12м2, спальня3 8.12м2. 

Больше информации

"ЭЛЯ" 75м2

1 ЭТАЖ: крыльцо 2.16м2, прихожая 1.82м2, гардероб 1.93м2, кухня-гостиная 19.06м2, ванная 6.13м2. 

2 ЭТАЖ: холл 2.64м2, спальня1 9.57м2, спальня2 15.12м2. 

Больше информации

"ЮЛИЯ" 72м2

1 ЭТАЖ: холл 15.55м2, кухня 10.18м2, прихожая 5.09м2. 

2 ЭТАЖ: холл 11.23м2, спальня 15.55м2

Больше информации

ПОСТРОИТЬ ДОМ ИНСТРУКЦИЯ

                                                                  

СТРОЙКА ОН-ЛАЙН

Данный сайт носит

исключительно 

информационный характер

и не является публичной

офертой, определяемой

положениями ст.437 ГК РФ