НОВОСТИ, СКИДКИ, АКЦИИ
"РОТАРУ" 173м2
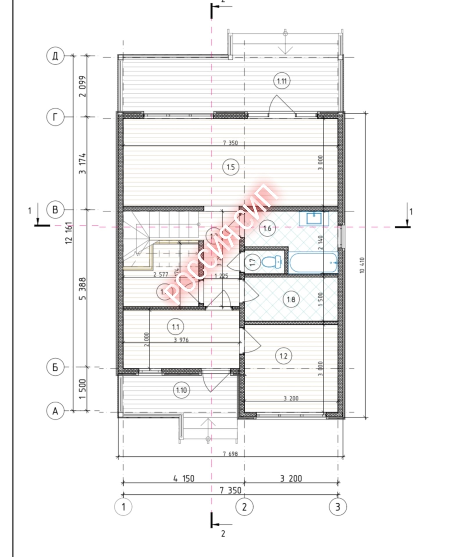
ПРОЕКТ "РОТАРУ" 173м2
1 ЭТАЖ: прихожая 7,95м2, гостевая 9,6м2, холл 7,56м2, кладовая 4,59м2, кухня-гостиная 22,05м2, ванная 5,46м2, с/у 1,1м2, бойлерная 4,8м2, крыльцо 6,23м2, терраса 15,4м2
2 ЭТАЖ: холл 4,29м2, с/у 4,44м2, спальня1 10,84м2, спальня2 10,84м2, спальня3 13,38м2, гардеробная 5,57м2, кабинет 9,6м2, балкон 6,23м2





