АССОЦИАЦИЯ ДОМОСТРОИТЕЛЬНЫХ ТЕХНОЛОГИЙ

СИП ДОМА, СИП ПАНЕЛИ, ДОМОКОМПЛЕКТЫ, СИП ОБОРУДОВАНИЕ, СИП КОНСТРУКЦИИ, СИП ЗАВОДЫ

        +7-937-992-40-28           russiasip@mail.ru        ПОЛУЧИТЬ КОНСУЛЬТАЦИЮ ПОЛУЧИТЬ ИПОТЕКУ

ОТПРАВИТЬ СООБЩЕНИЕ     КАНАЛ В ТЕЛЕГРАМ  

  • ГЛАВНАЯ
  • АССОЦИАЦИЯ
    • О НАС
    • ФРАНШИЗА
    • ВСТУПЛЕНИЕ
    • НАШИ ФИЛИАЛЫ
    • РЕЕСТР
    • ТЕХНОЛОГИЯ
    • ВИДЕО
    • СЕРТИФИКАТЫ
    • НОВОСТИ
  • ПРОЕКТЫ
    • 1-ЭТАЖНЫЕ
    • 2-ЭТ. ДО 100 КВ.М.
    • 2-ЭТ. 100-150 КВ.М.
    • 2-ЭТ. ОТ 150 КВ.М.
    • МНОГОКВАРТИРНЫЕ
    • ЗДАНИЯ
    • ГОСТИНИЦЫ
    • ТАУНХАУСЫ
    • ЭЛИНГИ
    • ГАРАЖИ
    • МИНИМАГАЗИНЫ
    • БАРНХАУС и ХАЙ-ТЕК
    • ТУРБАЗЫ
  • СТРОИТЕЛЬСТВО
    • СТОИМОСТЬ
    • СТРОИТЕЛЬСТВО ПО СЕРТИФИКАТАМ
    • СОБРАТЬ САМОМУ ИНСТРУКЦИЯ
    • ФОТО ДОМОВ
    • ОБЪЕКТЫ НА КАРТЕ
  • ВАЖНО
  • ТОВАРЫ
    • СИП ПАНЕЛИ
      • ЭКОЛОГИЧНОСТЬ
      • ПЕНОПОЛИСТИРОЛ
      • ОСБ
      • СВОЙСТВА И ХАРАКТЕРИСТИКИ
      • ГОРЮЧЕСТЬ
      • ДОЛГОВЕЧНОСТЬ
      • КУПИТЬ ПАНЕЛЬ
      • ПРАЙС-ЛИСТ
      • СЕРТИФИКАТЫ
    • СИП GREEN BOARD
    • СМЛ ПАНЕЛИ
      • СМЛ ПАНЕЛЬ ОПИСАНИЕ
      • КУПИТЬ СМЛ ПАНЕЛЬ
      • ПРАЙС-ЛИСТ
    • ОБОРУДОВАНИЕ
    • ДОМОКОМПЛЕКТЫ
      • СОБРАТЬ САМОМУ ИНСТРУКЦИЯ
      • ДОМОКОМПЛЕКТ
      • СТОИМОСТЬ
  • АКЦИИ
  • ЦЕНЫ
  • ОБЪЕКТЫ
  • ОТЗЫВЫ
  • ЗЕМЛЯ
  • КОНТАКТЫ
  • ИПОТЕКА
  • КАЛЬКУЛЯТОР ИПОТЕКИ
  • ПОИСК
  • ГЛАВНАЯ
  • АССОЦИАЦИЯ
    • О НАС
    • ФРАНШИЗА
    • ВСТУПЛЕНИЕ
    • НАШИ ФИЛИАЛЫ
    • РЕЕСТР
    • ТЕХНОЛОГИЯ
    • ВИДЕО
    • СЕРТИФИКАТЫ
    • НОВОСТИ
  • ПРОЕКТЫ
    • 1-ЭТАЖНЫЕ
    • 2-ЭТ. ДО 100 КВ.М.
    • 2-ЭТ. 100-150 КВ.М.
    • 2-ЭТ. ОТ 150 КВ.М.
    • МНОГОКВАРТИРНЫЕ
    • ЗДАНИЯ
    • ГОСТИНИЦЫ
    • ТАУНХАУСЫ
    • ЭЛИНГИ
    • ГАРАЖИ
    • МИНИМАГАЗИНЫ
    • БАРНХАУС и ХАЙ-ТЕК
    • ТУРБАЗЫ
  • СТРОИТЕЛЬСТВО
    • СТОИМОСТЬ
    • СТРОИТЕЛЬСТВО ПО СЕРТИФИКАТАМ
    • СОБРАТЬ САМОМУ ИНСТРУКЦИЯ
    • ФОТО ДОМОВ
    • ОБЪЕКТЫ НА КАРТЕ
  • ВАЖНО
  • ТОВАРЫ
    • СИП ПАНЕЛИ
      • ЭКОЛОГИЧНОСТЬ
      • ПЕНОПОЛИСТИРОЛ
      • ОСБ
      • СВОЙСТВА И ХАРАКТЕРИСТИКИ
      • ГОРЮЧЕСТЬ
      • ДОЛГОВЕЧНОСТЬ
      • КУПИТЬ ПАНЕЛЬ
      • ПРАЙС-ЛИСТ
      • СЕРТИФИКАТЫ
    • СИП GREEN BOARD
    • СМЛ ПАНЕЛИ
      • СМЛ ПАНЕЛЬ ОПИСАНИЕ
      • КУПИТЬ СМЛ ПАНЕЛЬ
      • ПРАЙС-ЛИСТ
    • ОБОРУДОВАНИЕ
    • ДОМОКОМПЛЕКТЫ
      • СОБРАТЬ САМОМУ ИНСТРУКЦИЯ
      • ДОМОКОМПЛЕКТ
      • СТОИМОСТЬ
  • АКЦИИ
  • ЦЕНЫ
  • ОБЪЕКТЫ
  • ОТЗЫВЫ
  • ЗЕМЛЯ
  • КОНТАКТЫ
  • ИПОТЕКА
  • КАЛЬКУЛЯТОР ИПОТЕКИ
  • ПОИСК
  +7-937-992-40-28     НАШ КАНАЛ   СЕРТИФИКАТЫ

НОВОСТИ, СКИДКИ, АКЦИИ

Главная 2-ЭТАЖНЫЕ ДОМА…

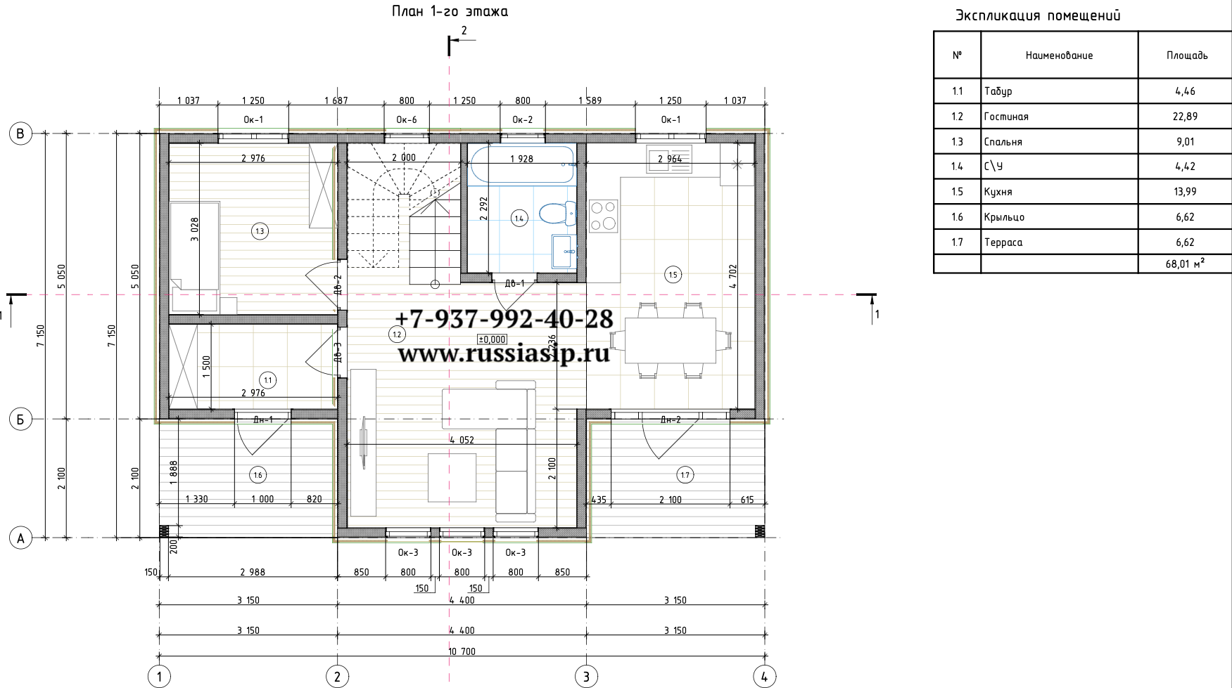
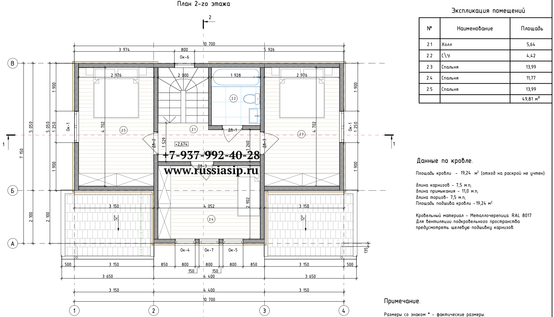
"РОЗА" 140м2

Хит продаж

1 ЭТАЖ: тамбур 4,46м2, гостиная 22,89м2, спальня1 9,01м2, с/у1 4,42м2, кухня 13,99м2, крыльцо 6,2м2, терраса 6,62м2

2 ЭТАЖ: холл 5,64м2, с/у2 4,42м2, спальня2 13,99м2, спальня3 11,77м2, спальня4 13,99м2

1 ЭТАЖ: тамбур 4,46м2, гостиная 22,89м2, спальня1 9,01м2, с/у1 4,42м2, кухня 13,99м2, крыльцо 6,2м2, терраса 6,62м2

2 ЭТАЖ: холл 5,64м2, с/у2 4,42м2, спальня2 13,99м2, спальня3 11,77м2, спальня4 13,99м2


ПОСТРОИТЬ ДОМ ИНСТРУКЦИЯ

                                                                  

СТРОЙКА ОН-ЛАЙН

Данный сайт носит

исключительно 

информационный характер

и не является публичной

офертой, определяемой

положениями ст.437 ГК РФ