НОВОСТИ, СКИДКИ, АКЦИИ
"АНАСТАСИЯ" 116м2
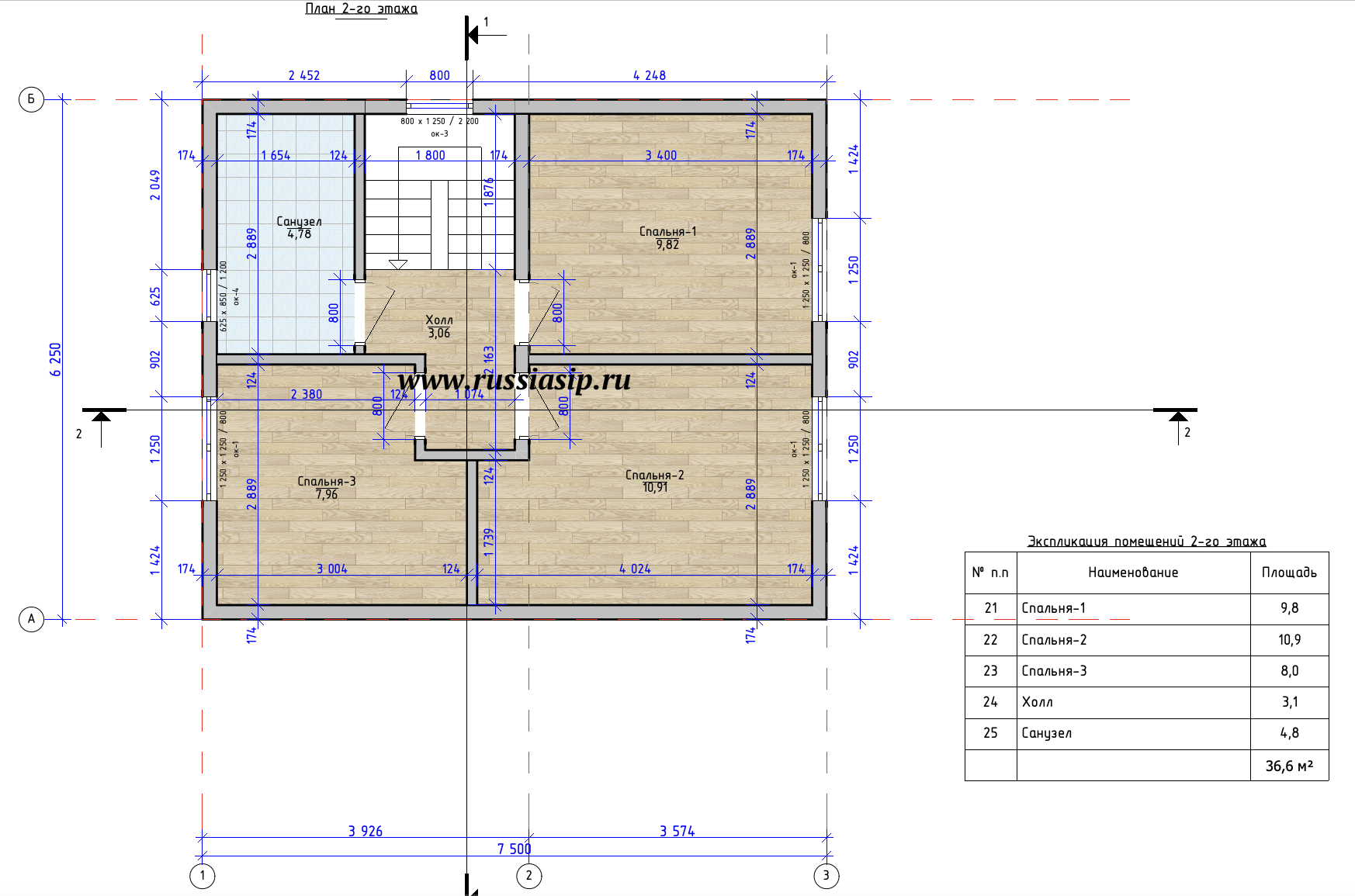
Проект "Анастасия" 116м2.
1 этаж: кухня-гостиная. холл, гардероб, с/у, прихожая, крыльцо, терраса. 2 этаж: 3 спальни, холл, с/у.
https://www.youtube.com/watch?v=mb-MHQw8aDU



АССОЦИАЦИЯ ДОМОСТРОИТЕЛЬНЫХ ТЕХНОЛОГИЙ
СИП ДОМА, СИП ПАНЕЛИ, ДОМОКОМПЛЕКТЫ, СИП ОБОРУДОВАНИЕ, СИП КОНСТРУКЦИИ, СИП ЗАВОДЫ
+7-937-992-40-28 russiasip@mail.ru ПОЛУЧИТЬ КОНСУЛЬТАЦИЮ ПОЛУЧИТЬ ИПОТЕКУ
Проект "Анастасия" 116м2.
1 этаж: кухня-гостиная. холл, гардероб, с/у, прихожая, крыльцо, терраса. 2 этаж: 3 спальни, холл, с/у.
https://www.youtube.com/watch?v=mb-MHQw8aDU
Проект "Анастасия" 116м2.
1 этаж: кухня-гостиная. холл, гардероб, с/у, прихожая, крыльцо, терраса. 2 этаж: 3 спальни, холл, с/у.
https://www.youtube.com/watch?v=mb-MHQw8aDU



Данный сайт носит
исключительно
информационный характер
и не является публичной
офертой, определяемой
положениями ст.437 ГК РФ